市街地の古民家です♪ 県病院、タイヨー平田店、ドラッグストア、郵便局、徒歩圏内♪
賃貸一戸建て奄美市名瀬真名津町 古民家5K♪
賃料5.5万円
物件情報
| 家賃 | 5.5万円 | 共益費 | - |
|---|---|---|---|
| 敷金/礼金 | 2ヶ月/1ヶ月 | 保証金 | - |
| 仲介手数料 | - | ||
| その他費用 | - | 概算初期費用敷金 + 礼金 + 保証金 + 前家賃(1ヶ月分)+ 前管理賃(共益費1ヶ月分)+ 仲介手数料 + その他費用の合計です。 | - |
| 料金備考 | - | ||
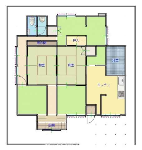
| 間取り | 5K (-) | ||
| 部屋番号 | - | 所在階/階数 | - |
| ペット | - | 専有面積 | 60m² / 18.15坪 |
| 取引態様 | 0 | 入居 | - |
| 契約期間 | 2年更新 | 更新料 | - |
| 保証会社 | - | ||
| 所在地 | 奄美市名瀬真名津町 | ||
| 駐車場 | 1台無料 軽 | 交通 | - |
| 更新日 | 2026/02/26 | 公開期限 | 2026/03/28 |
この物件の設備・条件
| バス・トイレ | バス/トイレ別 |
|---|---|
| 駐車場 | 駐輪場 |
| 設備備考 | 2人入居可 / プロバンガス |
物件備考
| 備考 | 駐車場は軽1台付き♪ |
|---|
建物情報
| 物件名 | 奄美市名瀬真名津町 古民家5K♪ | 築年月 | - |
|---|---|---|---|
| 建物構造 | 木造 | 建物階数 | 1階建 |
【奄美の島】は、より正確な情報の提供を心がけておりますが、物件情報に誤りがある場合は、ご連絡をお願い致します。
ご報告いただいた内容につきましては、掲載提供元である不動産会社に直接送信させていただきます。情報が不足している場合や、事実確認ができない場合などは対応できない場合がございます。
修正報告会社情報
株式会社 NEXT WORKS【奄美NEXT不動産】
0997-69-3828
※お問い合わせの際は、「奄美の島のWebサイトを見た」というと話がスムーズに進みます。
| 住所 | 鹿児島県奄美市名瀬幸町 2-7 地図 |
|---|---|
| 営業時間 | 10:00〜18:30 |
| 定休日 | 日曜日・祝日 |
| 免許 | 鹿児島県知事(2)第5792号 |













